Leamington is an inviting retirement community located in a mature residential area in Leamington. We provide independent living options complemented by flexible care services designed for an active and fulfilling retirement experience. Our well-established, single-level retirement residence is recognized locally for its friendly and dedicated staff and management team, which has played a significant role in building our strong reputation for care and customer service.

lifestyleleamington@cogirseniorliving.ca

1 Henry Avenue, Leamington, Ontario,  N8H 5P1

For availability & to book a tour
call (519) 322-0311

Property Image

Fresh New Look

Discover the perfect balance of style and sophistication in our newly rennovated suites, showcasing premium finishes designed to elevate your living experience

Time Well Spent

With so much to do, you’ll never be bored. Engage your mind, body, and spirit with activities that naturally inspire new friendships. Whether engaging in lively activities or reading your favorite book, the choice is always yours.

Common areas for you to enjoy

Dining room
Lounge
Fitness Centre
Movie theater
Bistro
Communal garden
Craft kitchen
Outdoor parking
Hair salon
Pet Friendly
Recreation Room
  • Laundry services
  • À la carte meals
  • On-demand care for independent retirees
  • Social life and leisures
  • Housekeeping
  • Appointment with professionals directly at the residence
  • Elevators
  • Access for people with reduced mobility
  • Hair salon
  • Shuttle/bus
  • Minor repairs
  • Nursing staff 24/7

Care for every need

Our range of senior living options and support systems.

Independent Living

Short Term Stay

Respite Stay

Explore our space in 3D

Leamington Studio Model Suite

Available models

Type Plans Price (Starting from) Inclusions
Studio Plan Call us to find out more

  • Heat
  • Hydro
  • Water
  • Phone
  • Cable TV
  • Internet/Wifi
  • Weekly housekeeping
  • 3 meals
  • In suite kitchenette with refrigerator and microwave
  • Appliances
  • Shared Laundry (each floor)
  • Individual HVAC (Heat/AC) available in select suites
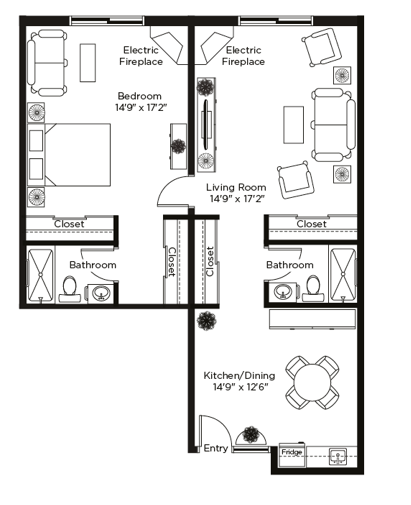
1-Bedroom - Call us to find out more

* Availability of suites to be validated with the Lifestyle Consultant. Prices may be subject to change without notice. Additional fees are applicable in the event that additional services are needed or are mandatory.

The
neighbourhood

Leamington is conveniently located in well-established residential area on a serene cul-de-sac, within walking distance or a short drive from the diverse amenities available in Leamington. Residents can easily access major retailers, pharmacies, coffee shops, banks, medical clinics, and places of worship, with Erie Shores Healthcare located just a few minutes to the north. Additionally, the residence is in close proximity to Highway 401, providing a straightforward journey of approximately 45 minutes to Windsor and the U.S. border.

To apply for a job, please check for jobs posted on our careers page: Cogir Senior Living - Careers.

(519) 322-0311

1 Henry Avenue, Leamington, Ontario,  N8H 5P1

Lifestyle Consultant

Nadia Didomenico

lifestyleleamington@cogirseniorliving.ca

General Manager

Gino Nicoletti

Gino.Nicoletti@cogirseniorliving.ca

Contact us


HUMAN FOCUS

CREATIVITY

EXCELLENCE